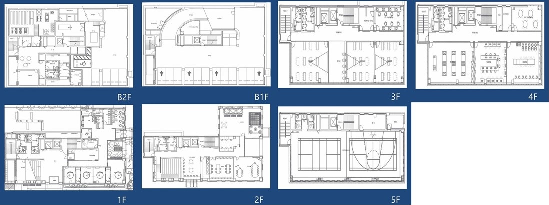
시설규모 및 주요시설
| 층별 | 시설명 | 비고 |
|---|---|---|
| 지상5층 | 다목적체육시설 | |
| 창고 | ||
| 지상4층 | 제1~3실습실 | |
| 강사대기실 | ||
| 다용도실 | ||
| 지상3층 | 제1여성복지관 사무실 | |
| 제1~3교육장 | ||
| 다용도실 | ||
| 휴게홀 | ||
| 지상2층 | 센터 사무실 | |
| 열람실 | ||
| 시니어홀 | ||
| 북카페 | ||
| 휴게홀 | ||
| 옥외정원 | ||
| 지상1층 | 안내데스크 | |
| 계단형 열람홀 | ||
| 동대문구청 어린이집 | ||
| 창고 | ||
| 지하1층 | 주차장 | |
| 방재실 | ||
| 직원휴게실 | ||
| 지하2층 | 남녀사워실 | |
| 다용도실 | ||
| 휴게홀 | ||
| 기계실/전기실 | ||
| 주차장 | ||
| 창고 |
동대문구통합예약사이트
층별안내
| 층별 | 시설명 | 비고 |
|---|---|---|
| 지상5층 | 다목적체육시설 | |
| 창고 | ||
| 지상4층 | 제1~3실습실 | |
| 강사대기실 | ||
| 다용도실 | ||
| 지상3층 | 제1여성복지관 사무실 | |
| 제1~3교육장 | ||
| 다용도실 | ||
| 휴게홀 | ||
| 지상2층 | 센터 사무실 | |
| 열람실 | ||
| 시니어홀 | ||
| 북카페 | ||
| 휴게홀 | ||
| 옥외정원 | ||
| 지상1층 | 안내데스크 | |
| 계단형 열람홀 | ||
| 동대문구청 어린이집 | ||
| 창고 | ||
| 지하1층 | 주차장 | |
| 방재실 | ||
| 직원휴게실 | ||
| 지하2층 | 남녀사워실 | |
| 다용도실 | ||
| 휴게홀 | ||
| 기계실/전기실 | ||
| 주차장 | ||
| 창고 |